Middle Floor Apartment, Málaga

Málaga, Costa del Sol, Málaga
CDS 5182867
650.000 €
  • bed

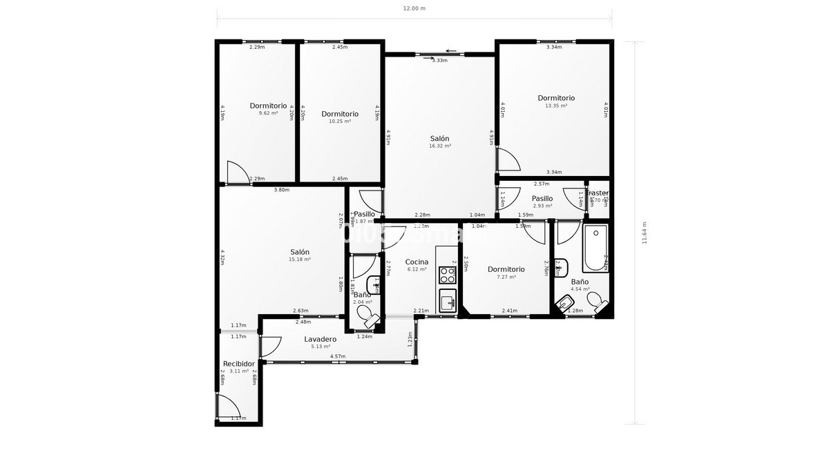
    4 dormitorios

  • bath

    1 baños

  • area

    120m2

¡Oportunidad única en La Malagueta!
Esta amplia y luminosa vivienda, ideal para reformar a tu gusto, cuenta con una excelente distribución. Consta de un dormitorio doble y tres individuales, un baño completo y un aseo de invitados. El gran hall de entrada y los dos amplios salones, uno de ellos con salida a una terraza, son perfectos para adaptarlos a tus necesidades. También incluye una zona de lavandería.
Esta propiedad es adecuada para familias debido a sus grandes espacios, y también como inversión, ya que se podrían convertir dos apartamentos y rentabilizarlos.

La propiedad, orientada al este, ofrece la posibilidad de disfrutar de vistas laterales al mar y de un ambiente despejado desde la terraza. También se beneficia de dos trasteros. Los techos altos y la puerta de seguridad añaden un toque de elegancia y seguridad.

Situado en una zona céntrica, con fácil acceso al transporte público (autobuses), colegios, supermercados, parques y a la costa, podrá disfrutar de una alta calidad de vida. Dispone de zonas infantiles, arbolado y tranquilidad, lo que lo convierte en un lugar perfecto para vivir.

No deje pasar esta oportunidad de adquirir una vivienda con gran potencial en una de las zonas más demandadas de Málaga. ¡Venga a verla y descubra todo lo que le ofrece!

En cumplimiento del Decreto 2182005, de 11 de octubre, de la Junta de Andalucía, se informa al cliente que los gastos notariales, registrales, de transmisión patrimonial (ITP), y otros inherentes a la compra NO están incluidos en el precio. Los gastos de intermediación inmobiliaria SÍ están incluidos en el precio. El consumidor tiene derecho a recibir una copia del correspondiente documento de información abreviada (DIA) del inmueble.

¿Le interesa este inmueble?

Contacto