Detached Villa, Benahavís

Málaga, Costa del Sol, Benahavís
CDS 4668952
5.900.000 €
  • bed

    4 dormitorios

  • bath

    4 baños

  • area

    750m2

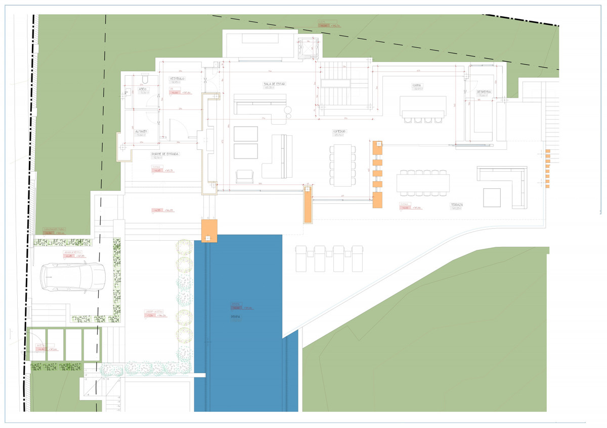
Villa Alegría es una villa de lujo a estrenar en el prestigioso Marbella Club Golf Resort. La casa se extiende 650m ² en una parcela de 2.000m ² y ofrece cuatro dormitorios con baños en suite, cada uno con acceso a terrazas privadas con amplias vistas de la costa mediterránea y verdes colinas. Se trata de un proyecto llave en mano diseñado para compradores que buscan elegancia, comodidad y una ubicación privilegiada.

La villa presenta una distribución diáfana con interiores luminosos y ventanales que conectan a la perfección con amplias terrazas. Un diseño curvo conduce directamente a la piscina, creando un flujo sin esfuerzo entre los espacios interiores y exteriores. La cocina y el comedor gozan de vistas al campo, lo que los convierte en el lugar ideal para recibir a familiares y amigos.

Otras características destacadas son el espacio para un gimnasio privado, un garaje subterráneo para cinco coches y acabados de alta gama. Cada detalle ha sido cuidadosamente planificado para combinar el estilo moderno con el lujo práctico. Villa Alegría es más que un hogar: es un refugio seguro y exclusivo en una de las comunidades más codiciadas de Marbella.

¿Le interesa este inmueble?

Contacto