Middle Floor Apartment, Estepona

Málaga, Costa del Sol, Estepona
CDS 5110600
825.000 €
  • bed

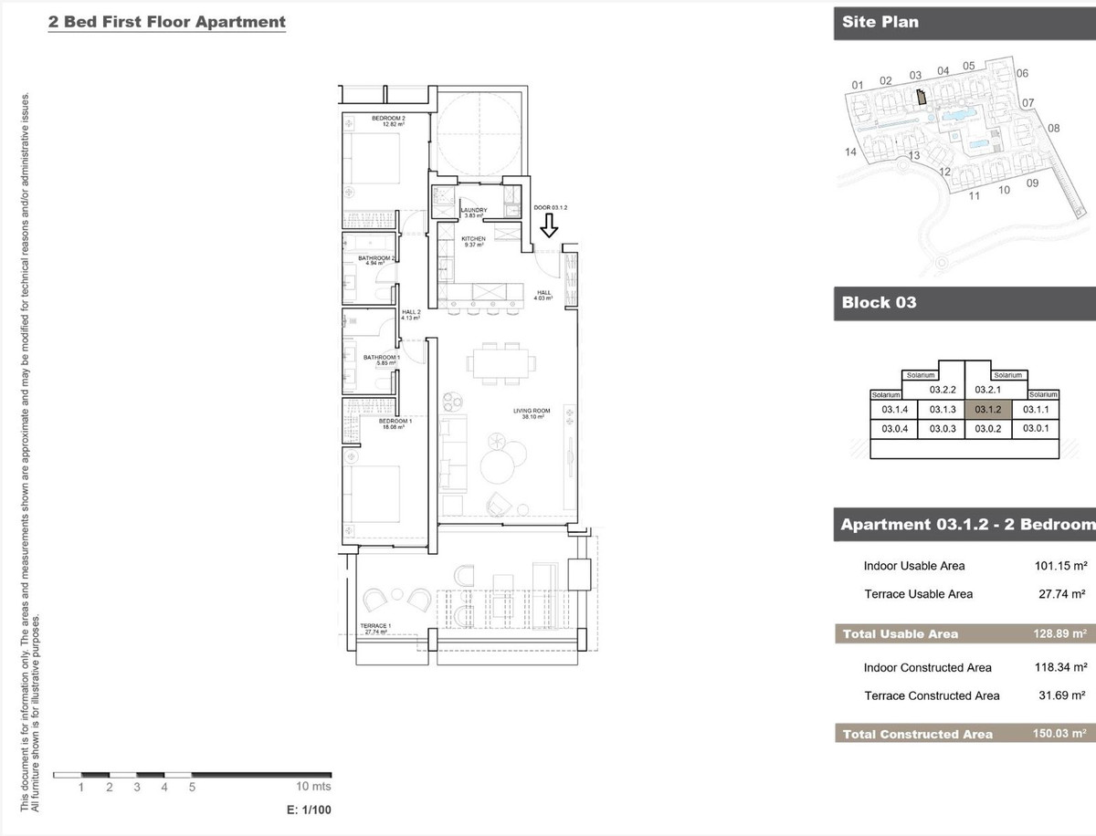
    2 dormitorios

  • bath

    2 baños

  • area

    102m2

Vida moderna en la Nueva Milla de Oro – Apartamento de 2 dormitorios con gran terraza privada

Este elegante apartamento en planta baja forma parte de un vanguardista complejo residencial en una de las zonas más deseadas de Estepona: la Nueva Milla de Oro. Diseñado con elegancia y funcionalidad en mente, la propiedad ofrece un diseño luminoso y abierto que integra a la perfección la vida interior y exterior.

Con 2 amplios dormitorios y 2 baños, esta vivienda también incluye una generosa terraza privada, perfecta para disfrutar del sol, comer al aire libre o entretenerse. Rodeada de exuberantes jardines y espacios comunes de primera calidad, aúna confort, calidad y diseño contemporáneo.

Situado en un entorno tranquilo y seguro, con fácil acceso a la playa, campos de golf, restaurantes y todos los servicios clave, esta propiedad se destaca como una residencia permanente ideal, refugio de vacaciones, o una oportunidad de inversión.

Entrega estimada por el promotor: 2026.

¿Le interesa este inmueble?

Contacto