Commercial Plot, La Cala Golf

Málaga, Costa del Sol, La Cala Golf
CDS 5182411
1.690.000 €
  • area

    3650m2

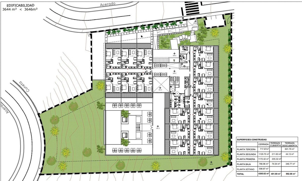
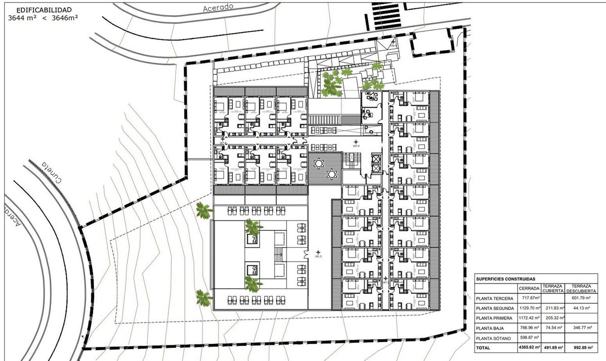
¡Gran oportunidad para inversores!

Parcela en La Cala Golf, estratégicamente situada junto al prestigioso campo de golf.

Se trata de una parcela destinada a Equipamiento/Comercial, con una superficie total de m² y 3.650 m² edificables, con proyecto viable para la construcción de hasta 51 apartamentos turísticos.

También existe la posibilidad de vender estos apartamentos individualmente a terceros inversores mediante acciones, con gestión integral a cargo de un operador turístico.

Además, su ubicación privilegiada lo convierte en un espacio versátil, ideal también para otros proyectos como supermercado, gasolinera u otros servicios muy demandados en la zona.

Viabilidad garantizada. Una inversión segura en una de las zonas más prometedoras de la Costa del Sol.

¿Le interesa este inmueble?

Contacto